
- Provence-Alpes-Côte d'Azur - Mobilhomes/BungalowsCamping 3* - Situé à quelques minutes de la Croisette - A 1.5km des plages - Dans un parc ombragé de 5ha - Piscine extérieure chauffée - Activités enfants et famille - Bar/Restaurant - En option : linge de lit
Dans cette résidence
Avis des internautes 
Il n'y a pas encore de commentaire.
Soyez le premier à donner votre avis !

Mobil home pour 4 personnes, composé d'un coin cuisine équipé, d'un salon avec une banquette, d'une chambre avec un lit double, d'une seconde chambre avec 2 lits simples et d'une terrasse en bois.A noter : ce logement ne possède pas de WC ni de salle de bains. Les occupants devront utiliser les sanitaires du camping.
Equipement
Le mobil home est équipé d'une plaque de cuisson gaz, d'un réfrigérateur, d'une cafetière électrique et de tous les ustensiles de cuisine.Les couvertures, oreillers, alèses et le matériel de nettoyage (balai, serpillère...) sont fournis.La terrasse dispose d'un salon de jardin pour passer d'agréables soirées d'été en famille.
Pour avoir plus de détails et réserver cet hébergement, choisissez une date ci-dessus et cliquez sur voir l'offre ! Vous serez redirigé vers le site proposant la location.
Mobil home d'environ 29m² pour 4/6 personnes, composé d'un coin cuisine, d'un salon avec une banquette convertible en couchage (pour 2 enfants), d'une chambre avec un lit double, d'une seconde chambre avec 2 lits séparés, d'une salle de bains avec douche et WC et d'une terrasse en bois couverte d'une bâche.
Equipement
Le mobil home est équipé d'une plaque de cuisson gaz, d'un réfrigérateur, d'une cafetière électrique, d'un micro-ondes et de tous les ustensiles de cuisine.Les couvertures, oreillers, alèses et le matériel de nettoyage (serpillère, balai, ...) sont fournis.La terrasse dispose d'un salon de jardin pour passer d'agréables soirées d'été en famille.
Pour avoir plus de détails et réserver cet hébergement, choisissez une date ci-dessus et cliquez sur voir l'offre ! Vous serez redirigé vers le site proposant la location.

Mobil home récent (2008) d'environ 22m² pour 2 adultes et 2/3 enfants, composé d'un coin cuisine équipé, d'un salon avec une banquette convertible pour 1 enfant, d'une chambre avec un lit double, d'une seconde chambre avec 2 lits simples, d'une salle de bains avec douche et WC et d'une terrasse en bois.
Equipement
Le mobil home est équipé d'une plaque de cuisson au gaz, d'un réfrigérateur, d'une cafetière électrique et de tous les ustensiles de cuisine.Les couvertures, oreillers, alèses et matériel de nettoyage (balai, serpillère...) sont fournis.La terrasse dispose d'un salon de jardin pour passer d'agréables soirées d'été en famille.
Pour avoir plus de détails et réserver cet hébergement, choisissez une date ci-dessus et cliquez sur voir l'offre ! Vous serez redirigé vers le site proposant la location.

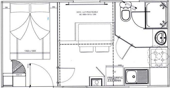
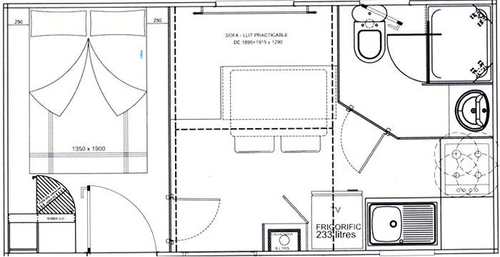
Mobil home récent (2009) d'environ 17m² pour 2 adultes et un enfant de moins de 12 ans, composé d'un coin cuisine équipé, d'un salon avec un banquette convertible en lit pour un enfant de moins de 12 ans, d'une chambre avec un lit double, d'une salle de bains avec douche et WC et d'une terrasse en bois.
Equipement
Le mobil home est équipé d'une plaque de cuisson au gaz, d'un réfrigérateur, d'une cafetière électrique et de tous les ustensiles de cuisine.Les couvertures, oreillers, alèses et matériel de nettoyage (balai, serpillère...) sont fournis.La terrasse dispose d'un salon de jardin pour passer d'agréables soirées d'été en famille.
Pour avoir plus de détails et réserver cet hébergement, choisissez une date ci-dessus et cliquez sur voir l'offre ! Vous serez redirigé vers le site proposant la location.
Mobil home d'environ 25m² pour 4 personnes, composé d'un coin cuisine équipé, d'un salon avec un banquette, d'une chambre avec un lit double, d'une seconde chambre avec 2 lits simples, d'une salle de bains avec douche et WC et d'une terrasse en bois.
Equipement
Le mobil home est équipé d'une plaque de cuisson gaz, d'un réfrigérateur, d'une cafetière électrique, d'un four micro-ondes et de tous les ustensiles de cuisine.Les couvertures, oreillers, alèses et le matériel de nettoyage (serpillère, balai...) sont fournis.La terrasse dispose d'un salon de jardin pour passer d'agréables soirées d'été en famille.
Pour avoir plus de détails et réserver cet hébergement, choisissez une date ci-dessus et cliquez sur voir l'offre ! Vous serez redirigé vers le site proposant la location.

Mobil home d'environ 25m² pour 4 personnes, composé d'un coin cuisine équipé, d'un salon avec un banquette, d'une chambre avec un lit double, d'une seconde chambre avec 2 lits simples, d'une salle de bains avec douche et WC et d'une terrasse en bois.
Equipement
Le mobil home est équipé d'une plaque de cuisson gaz, d'un réfrigérateur, d'une cafetière électrique, d'un four micro-ondes et de tous les ustensiles de cuisine.
Les couvertures, oreillers, alèses et le matériel de nettoyage (serpillère, balai...) sont fournis.
La terrasse dispose d'un salon de jardin pour passer d'agréables soirées d'été en famille.
Pour avoir plus de détails et réserver cet hébergement, choisissez une date ci-dessus et cliquez sur voir l'offre ! Vous serez redirigé vers le site proposant la location.

Mobil home récent (2009) d'environ 17m² pour 2 adultes et un enfant de moins de 12 ans, composé d'un coin cuisine équipé, d'un salon avec un banquette convertible en lit pour un enfant de moins de 12 ans, d'une chambre avec un lit double, d'une salle de bains avec douche et WC et d'une terrasse en bois.
Equipement
Le mobil home est équipé d'une plaque de cuisson au gaz, d'un réfrigérateur, d'une cafetière électrique et de tous les ustensiles de cuisine.
Les couvertures, oreillers, alèses et matériel de nettoyage (balai, serpillère...) sont fournis.
La terrasse dispose d'un salon de jardin pour passer d'agréables soirées d'été en famille.
Pour avoir plus de détails et réserver cet hébergement, choisissez une date ci-dessus et cliquez sur voir l'offre ! Vous serez redirigé vers le site proposant la location.

Mobil home récent (2008) d'environ 22m² pour 2 adultes et 2/3 enfants, composé d'un coin cuisine équipé, d'un salon avec une banquette convertible pour 1 enfant, d'une chambre avec un lit double, d'une seconde chambre avec 2 lits simples, d'une salle de bains avec douche et WC et d'une terrasse en bois.
Equipement
Le mobil home est équipé d'une plaque de cuisson au gaz, d'un réfrigérateur, d'une cafetière électrique et de tous les ustensiles de cuisine.
Les couvertures, oreillers, alèses et matériel de nettoyage (balai, serpillère...) sont fournis.
La terrasse dispose d'un salon de jardin pour passer d'agréables soirées d'été en famille.
Pour avoir plus de détails et réserver cet hébergement, choisissez une date ci-dessus et cliquez sur voir l'offre ! Vous serez redirigé vers le site proposant la location.

Mobil home d'environ 29m² pour 4/6 personnes, composé d'un coin cuisine, d'un salon avec une banquette convertible en couchage (pour 2 enfants), d'une chambre avec un lit double, d'une seconde chambre avec 2 lits séparés, d'une salle de bains avec douche et WC et d'une terrasse en bois couverte d'une bâche.
Equipement
Le mobil home est équipé d'une plaque de cuisson gaz, d'un réfrigérateur, d'une cafetière électrique, d'un micro-ondes et de tous les ustensiles de cuisine.
Les couvertures, oreillers, alèses et le matériel de nettoyage (serpillère, balai, ...) sont fournis.
La terrasse dispose d'un salon de jardin pour passer d'agréables soirées d'été en famille.
Pour avoir plus de détails et réserver cet hébergement, choisissez une date ci-dessus et cliquez sur voir l'offre ! Vous serez redirigé vers le site proposant la location.

Mobil home pour 4 personnes, composé d'un coin cuisine équipé, d'un salon avec une banquette, d'une chambre avec un lit double, d'une seconde chambre avec 2 lits simples et d'une terrasse en bois. A noter : ce logement ne possède pas de WC ni de salle de bains. Les occupants devront utiliser les sanitaires du camping.
Equipement
Le mobil home est équipé d'une plaque de cuisson gaz, d'un réfrigérateur, d'une cafetière électrique et de tous les ustensiles de cuisine.
Les couvertures, oreillers, alèses et le matériel de nettoyage (balai, serpillère...) sont fournis.
La terrasse dispose d'un salon de jardin pour passer d'agréables soirées d'été en famille.
Pour avoir plus de détails et réserver cet hébergement, choisissez une date ci-dessus et cliquez sur voir l'offre ! Vous serez redirigé vers le site proposant la location.
Le camping Parc Bellevue, classé 3 étoiles, se situe à Cannes en région Provence-Alpes-Côte D'azur. Situé en bord de mer < 10km, le camping Parc Bellevue vous réserve d'agréables vacances grâce à des prestations de qualité : piscine, supermarché / épicerie, restaurant, animations, etc. Point de départ idéal pour découvrir la région Provence-Alpes-Côte D'azur, vous serez charmé par la beauté des paysages et la richesse du patrimoine. Pour vos vacances en camping, réservez votre mobil home tout confort au camping Parc Bellevue et profitez de moments de plaisir assurés !
Pour avoir plus de détails et réserver cet hébergement, choisissez une date ci-dessus et cliquez sur voir l'offre ! Vous serez redirigé vers le site proposant la location.Le camping Parc Bellevue, classé 3 étoiles, se situe à Cannes en région Provence-Alpes-Côte D'azur. Situé en bord de mer < 10km, le camping Parc Bellevue vous réserve d'agréables vacances grâce à des prestations de qualité : piscine, supermarché / épicerie, restaurant, animations, etc. Point de départ idéal pour découvrir la région Provence-Alpes-Côte D'azur, vous serez charmé par la beauté des paysages et la richesse du patrimoine. Pour vos vacances en camping, réservez votre mobil home tout confort au camping Parc Bellevue et profitez de moments de plaisir assurés !
Pour avoir plus de détails et réserver cet hébergement, choisissez une date ci-dessus et cliquez sur voir l'offre ! Vous serez redirigé vers le site proposant la location.Le camping Parc Bellevue, classé 3 étoiles, se situe à Cannes en région Provence-Alpes-Côte D'azur. Situé en bord de mer < 10km, le camping Parc Bellevue vous réserve d'agréables vacances grâce à des prestations de qualité : piscine, supermarché / épicerie, restaurant, animations, etc. Point de départ idéal pour découvrir la région Provence-Alpes-Côte D'azur, vous serez charmé par la beauté des paysages et la richesse du patrimoine. Pour vos vacances en camping, réservez votre mobil home tout confort au camping Parc Bellevue et profitez de moments de plaisir assurés !
Pour avoir plus de détails et réserver cet hébergement, choisissez une date ci-dessus et cliquez sur voir l'offre ! Vous serez redirigé vers le site proposant la location.Le camping Parc Bellevue, classé 3 étoiles, se situe à Cannes en région Provence-Alpes-Côte D'azur. Situé en bord de mer < 10km, le camping Parc Bellevue vous réserve d'agréables vacances grâce à des prestations de qualité : piscine, supermarché / épicerie, restaurant, animations, etc. Point de départ idéal pour découvrir la région Provence-Alpes-Côte D'azur, vous serez charmé par la beauté des paysages et la richesse du patrimoine. Pour vos vacances en camping, réservez votre mobil home tout confort au camping Parc Bellevue et profitez de moments de plaisir assurés !
Pour avoir plus de détails et réserver cet hébergement, choisissez une date ci-dessus et cliquez sur voir l'offre ! Vous serez redirigé vers le site proposant la location.Le camping Parc Bellevue, classé 3 étoiles, se situe à Cannes en région Provence-Alpes-Côte D'azur. Situé en bord de mer < 10km, le camping Parc Bellevue vous réserve d'agréables vacances grâce à des prestations de qualité : piscine, supermarché / épicerie, restaurant, animations, etc. Point de départ idéal pour découvrir la région Provence-Alpes-Côte D'azur, vous serez charmé par la beauté des paysages et la richesse du patrimoine. Pour vos vacances en camping, réservez votre mobil home tout confort au camping Parc Bellevue et profitez de moments de plaisir assurés !
Pour avoir plus de détails et réserver cet hébergement, choisissez une date ci-dessus et cliquez sur voir l'offre ! Vous serez redirigé vers le site proposant la location.Le camping Parc Bellevue, classé 3 étoiles, se situe à Cannes en région Provence-Alpes-Côte D'azur. Situé en bord de mer < 10km, le camping Parc Bellevue vous réserve d'agréables vacances grâce à des prestations de qualité : restaurant, supermarché / épicerie, animations, piscine, etc. Point de départ idéal pour découvrir la région Provence-Alpes-Côte D'azur, vous serez charmé par la beauté des paysages et la richesse du patrimoine. Pour vos vacances en camping, réservez votre mobil home tout confort au camping Parc Bellevue et profitez de moments de plaisir assurés !
Pour avoir plus de détails et réserver cet hébergement, choisissez une date ci-dessus et cliquez sur voir l'offre ! Vous serez redirigé vers le site proposant la location.Mobil home d'environ 29m² pour 4/6 personnes, composé d'un coin cuisine, d'un salon avec une banquette convertible en couchage (pour 2 enfants), d'une chambre avec un lit double, d'une seconde chambre avec 2 lits séparés, d'une salle de bains avec douche et WC et d'une terrasse en bois couverte d'une bâche.
Pour avoir plus de détails et réserver cet hébergement, choisissez une date ci-dessus et cliquez sur voir l'offre ! Vous serez redirigé vers le site proposant la location.Mobil home récent (2008) d'environ 22m² pour 2 adultes et 2/3 enfants, composé d'un coin cuisine équipé, d'un salon avec une banquette convertible pour 1 enfant, d'une chambre avec un lit double, d'une seconde chambre avec 2 lits simples, d'une salle de bains avec douche et WC et d'une terrasse en bois.
Pour avoir plus de détails et réserver cet hébergement, choisissez une date ci-dessus et cliquez sur voir l'offre ! Vous serez redirigé vers le site proposant la location.Mobil home récent (2009) d'environ 17m² pour 2 adultes et un enfant de moins de 12 ans, composé d'un coin cuisine équipé, d'un salon avec un banquette convertible en lit pour un enfant de moins de 12 ans, d'une chambre avec un lit double, d'une salle de bains avec douche et WC et d'une terrasse en bois.
Pour avoir plus de détails et réserver cet hébergement, choisissez une date ci-dessus et cliquez sur voir l'offre ! Vous serez redirigé vers le site proposant la location.Mobil home d'environ 25m² pour 4 personnes, composé d'un coin cuisine équipé, d'un salon avec un banquette, d'une chambre avec un lit double, d'une seconde chambre avec 2 lits simples, d'une salle de bains avec douche et WC et d'une terrasse en bois.
Pour avoir plus de détails et réserver cet hébergement, choisissez une date ci-dessus et cliquez sur voir l'offre ! Vous serez redirigé vers le site proposant la location.Mobil home pour 4 personnes, composé d'un coin cuisine équipé, d'un salon avec une banquette, d'une chambre avec un lit double, d'une seconde chambre avec 2 lits simples et d'une terrasse en bois.A noter : ce logement ne possède pas de WC ni de salle de bains. Les occupants devront utiliser les sanitaires du camping.
Pour avoir plus de détails et réserver cet hébergement, choisissez une date ci-dessus et cliquez sur voir l'offre ! Vous serez redirigé vers le site proposant la location.Le camping Parc Bellevue, classé 3 étoiles, se situe à Cannes en région Provence-Alpes-Côte D'azur. Situé en bord de mer < 10km, le camping Parc Bellevue vous réserve d'agréables vacances grâce à des prestations de qualité : piscine, supermarché / épicerie, restaurant, animations, etc. Point de départ idéal pour découvrir la région Provence-Alpes-Côte D'azur, vous serez charmé par la beauté des paysages et la richesse du patrimoine. Pour vos vacances en camping, réservez votre mobil home tout confort au camping Parc Bellevue et profitez de moments de plaisir assurés !
Pour avoir plus de détails et réserver cet hébergement, choisissez une date ci-dessus et cliquez sur voir l'offre ! Vous serez redirigé vers le site proposant la location.Le camping Parc Bellevue, classé 3 étoiles, se situe à Cannes en région Provence-Alpes-Côte D'azur. Situé en bord de mer < 10km, le camping Parc Bellevue vous réserve d'agréables vacances grâce à des prestations de qualité : piscine, supermarché / épicerie, restaurant, animations, etc. Point de départ idéal pour découvrir la région Provence-Alpes-Côte D'azur, vous serez charmé par la beauté des paysages et la richesse du patrimoine. Pour vos vacances en camping, réservez votre mobil home tout confort au camping Parc Bellevue et profitez de moments de plaisir assurés !
Pour avoir plus de détails et réserver cet hébergement, choisissez une date ci-dessus et cliquez sur voir l'offre ! Vous serez redirigé vers le site proposant la location.Mobil home pour 4 personnes, composé d'un coin cuisine équipé, d'un salon avec une banquette, d'une chambre avec un lit double, d'une seconde chambre avec 2 lits simples et d'une terrasse en bois. A noter : ce logement ne possède pas de WC ni de salle de bains. Les occupants devront utiliser les sanitaires du camping.
Pour avoir plus de détails et réserver cet hébergement, choisissez une date ci-dessus et cliquez sur voir l'offre ! Vous serez redirigé vers le site proposant la location.Mobil home d'environ 29m² pour 4/6 personnes, composé d'un coin cuisine, d'un salon avec une banquette convertible en couchage (pour 2 enfants), d'une chambre avec un lit double, d'une seconde chambre avec 2 lits séparés, d'une salle de bains avec douche et WC et d'une terrasse en bois couverte d'une bâche.
Pour avoir plus de détails et réserver cet hébergement, choisissez une date ci-dessus et cliquez sur voir l'offre ! Vous serez redirigé vers le site proposant la location.Mobil home récent (2008) d'environ 22m² pour 2 adultes et 2/3 enfants, composé d'un coin cuisine équipé, d'un salon avec une banquette convertible pour 1 enfant, d'une chambre avec un lit double, d'une seconde chambre avec 2 lits simples, d'une salle de bains avec douche et WC et d'une terrasse en bois.
Pour avoir plus de détails et réserver cet hébergement, choisissez une date ci-dessus et cliquez sur voir l'offre ! Vous serez redirigé vers le site proposant la location.Mobil home récent (2009) d'environ 17m² pour 2 adultes et un enfant de moins de 12 ans, composé d'un coin cuisine équipé, d'un salon avec un banquette convertible en lit pour un enfant de moins de 12 ans, d'une chambre avec un lit double, d'une salle de bains avec douche et WC et d'une terrasse en bois.
Pour avoir plus de détails et réserver cet hébergement, choisissez une date ci-dessus et cliquez sur voir l'offre ! Vous serez redirigé vers le site proposant la location.Mobil home d'environ 25m² pour 4 personnes, composé d'un coin cuisine équipé, d'un salon avec un banquette, d'une chambre avec un lit double, d'une seconde chambre avec 2 lits simples, d'une salle de bains avec douche et WC et d'une terrasse en bois.
Pour avoir plus de détails et réserver cet hébergement, choisissez une date ci-dessus et cliquez sur voir l'offre ! Vous serez redirigé vers le site proposant la location.Mobil home pour 4 personnes, composé d'un coin cuisine équipé, d'un salon avec une banquette, d'une chambre avec un lit double, d'une seconde chambre avec 2 lits simples et d'une terrasse en bois. A noter : ce logement ne possède pas de WC ni de salle de bains. Les occupants devront utiliser les sanitaires du camping.
Pour avoir plus de détails et réserver cet hébergement, choisissez une date ci-dessus et cliquez sur voir l'offre ! Vous serez redirigé vers le site proposant la location.Mobil home récent (2009) d'environ 17m² pour 2 adultes et un enfant de moins de 12 ans, composé d'un coin cuisine équipé, d'un salon avec un banquette convertible en lit pour un enfant de moins de 12 ans, d'une chambre avec un lit double, d'une salle de bains avec douche et WC et d'une terrasse en bois.
Pour avoir plus de détails et réserver cet hébergement, choisissez une date ci-dessus et cliquez sur voir l'offre ! Vous serez redirigé vers le site proposant la location.
Nos meilleurs plans
Recevez chaque semaine avant tout le monde les meilleurs prix des locations avec tous les bons plans, directement par mail.
Les mobilhomes
Partez en vacances en France pas cher en logeant dans un mobilhome, un hébergement pratique et économique, en profitant de réductions soigneusement négociées.
Campings & mobilhomes >
Dernière minute...
Partez à en séjour en France le 29 novembre et profitez de locations à prix mini...
Jusqu'à 60% de réduction !
>>>


Une équipe dédiée